七年级英语下Unit 1十五分钟课堂过关训练
Ⅰ.词汇
1.I live on a very (繁华的)street.
2.My friend usually sits on a (长凳)near his house,reading books.
3.When I am on a trip.I’d like to live in a (旅馆).
4.What’s in your (邻近地区)?
5.John likes to live in a small house (带有)an interesting garden.
Ⅱ.用适当的介词填空
1.There is a video arcade the busy street.
2.You can phone me 8:00 a.m. and 10:00 a.m.tomorrow(明天) morning.
3.They will arrive London next Monday.
4.Can you tell me how to get the new park?
5.Walk the Seventh Avenue.The hotel is your left.
6.I put some lowers next my window.
7.Is there a supermarket your neighborhood?
8.Excuse me.Is there a post office here?
Ⅲ.根据汉语提示翻译下列句子
1.沿着这条街往前走,然后向右拐。
Go this street,then .
2.这儿附近有图书馆吗?
there a here?
3.让我来告诉你如何到达飞机场。
Let me you how to the airport.
4.看这张照片,站在我右边的是我父亲。
Look this photo.The man is my father.
5.我喜欢坐在公园的长凳上看书。
I enjoy a bench the park.
Ⅳ.阅读理解
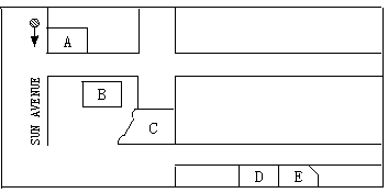
Peter and Charly will go to the movie theatre.But Peter doesn’t know the way.Charly writes the way on a piece of paper.
| Walk straight the Sun Avenue until you see a video arcade.Turn left and you are on the Centre Street.You will go past a library.Then turn right.Go straight and you will see a park in front of you.Go through the park and turn left.After you pass the seventh shop,you will see a supermarket.The movie theatre is next to the supermarket.You can’t miss(错过) it. |

1.你能准确地说出图中标号的位置吗?
A B C D E
2.回答下列问题
(1)Where do Peter and Charly want to go?
(2)Is the movie theatre near Peter’s home?
(3)Where is the library?
(4)Where is the movie theatre?
Ⅴ.书面表达
请你给远方的笔友写一封信,介绍一下你的邻近环境。
| Dear Lisa: I want to talk to you about my neighborhood.
Yours, Li Yang |
附参考答案:
Ⅰ.1.busy 2.bench 3.hotel 4.neighborhood 5.with
Ⅱ.1.on/in 2.between 3.in 4.to 5.along/down on 6.to 7.in 8.near
Ⅲ.1.along,turn right 2.Is,library,near 3.tell,get to 4.at,on my right 5.reading on,in
Ⅳ.1.A.video arcade B.library C.park D.supermarket E.movie theatre
2.(1)They want to see a movie.
or:They want to go to the movie theatre.
(2)No,it isn’t.
(3)It’s on the Centre Street.
(4)It’s next to the supermarket.
Ⅴ.略